SVĚT SOFTWARE
Stahuj.cz
Magazín
Hledat
Windows
iOS
Android
Zkontrolováno antivirem
Stahuj.cz
Magazín
Online nákup na SW.cz
Online hry
Přidat program
Windows
iOS
Android
Hledat
Stahuj.cz
Grafika a design
Tvorba grafiky
3D nástroje
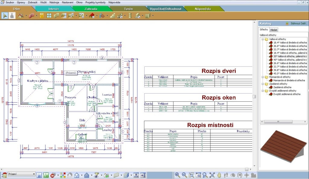
TurboFLOORPLAN
TurboFLOORPLAN
Přehled
Obrázky
Diskuze
Články
Celkové hodnocení
Průměr hodnocení
3
Celkový počet hodnocení
41 hlasů
Pro hodnocení programu se prosím nejprve
přihlaste
Související články
Nejstahovanější novinky na Stahuj.cz za červenec
Doporučujeme v kategorii
3
Live Interior 3D Standard
3
Active Takeoff
3
FluidRay
3
QuikGrid
3
Adobe Substance 3D Sampler
3
Clavicula
3
TerraForge3D
Něco jsme propásli?
Dejte nám vědět.
Upozornit redakci Stahuj
Velice děkujeme za Vaše podněty